Anlageobjekt mit Wohnrecht
116,07 m²
Dachterrasse
Zuletzt geändert: 15.04.2026, 08:15 Uhr | willhaben-Code: 1464249868
€ 349.000Kaufpreis
Objektstandort
Südtirolerstraße, 4020 Linz, Oberösterreich
Objektinformationen
- ObjekttypWohnung
- Wohnfläche116,07 m²
- Nutzfläche116,07 m²
Ausstattung und Freiflächen
- Dachterrasse
Preisinformation
Kaufpreis€ 349.000
Objektbeschreibung
Gepflegte Dachterrassenwohnung im 4.Liftstock gelegen als langfristige Anlage,- Übernahme mit nicht grundbücherlich eingetragenem Wohnrecht/keine Mieteinnahmen,- bis dato zum Teil als Büro genutzt.
Die Immobilie befindet sich in bester Infrastruktur, in ruhige Zentrumslage in unmittelbarer Nähe der Fußgängerzone und bester Anbindung an das öffentliche Verkehrsnetz.
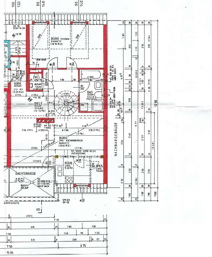
Bestehend ist die Immobilie aus Vorraum, geräumigem offenem Wohnbereich mit 68 m² inklusive eingerichteter offener Küche, Bad mit Badewanne, WC getrennt, über eine Wendeltreppe ist die Empore ca 18 m² und ein Spitzboden 23 m², sowie die Dachterasse mit 7,75 m² erreichbar. Gesamtwohnnutzfläche 116,07 m² zuzüglich dachterrasse
zugehöriges Kellerabteil
Monatliche Betriebskosten lt. Vorschreibung der Hausverwaltung 297,70 Euro
Instandhaltungsbeitrag: 131,70 Euro
Warmwasseraufbereitung: Fernwärme
Beheizung: Fernwärme
Strom wird nach Verbrauch direkt mit dem jeweiligen Versorgungsbetrieb abgerechnet
Die laufenden Betriebskosten werden von der Wohnrechtbegünstigten übernommen, ebenso die erforderliche Reparaturkosten zur Erhaltung des einwandfreien Zustandes der Immobilie.
Parkmöglichkeit mit der Bewohnerparkkarte umliegend.
Energieklasse C HWB-ref = 53,30 kWh/m²a
Bei Kaufabschluss ist eine Vermittlungsgebühr von 3,6% inkl Ust verrechnet.
Die Immobilie befindet sich in bester Infrastruktur, in ruhige Zentrumslage in unmittelbarer Nähe der Fußgängerzone und bester Anbindung an das öffentliche Verkehrsnetz.
Bestehend ist die Immobilie aus Vorraum, geräumigem offenem Wohnbereich mit 68 m² inklusive eingerichteter offener Küche, Bad mit Badewanne, WC getrennt, über eine Wendeltreppe ist die Empore ca 18 m² und ein Spitzboden 23 m², sowie die Dachterasse mit 7,75 m² erreichbar. Gesamtwohnnutzfläche 116,07 m² zuzüglich dachterrasse
zugehöriges Kellerabteil
Monatliche Betriebskosten lt. Vorschreibung der Hausverwaltung 297,70 Euro
Instandhaltungsbeitrag: 131,70 Euro
Warmwasseraufbereitung: Fernwärme
Beheizung: Fernwärme
Strom wird nach Verbrauch direkt mit dem jeweiligen Versorgungsbetrieb abgerechnet
Die laufenden Betriebskosten werden von der Wohnrechtbegünstigten übernommen, ebenso die erforderliche Reparaturkosten zur Erhaltung des einwandfreien Zustandes der Immobilie.
Parkmöglichkeit mit der Bewohnerparkkarte umliegend.
Energieklasse C HWB-ref = 53,30 kWh/m²a
Bei Kaufabschluss ist eine Vermittlungsgebühr von 3,6% inkl Ust verrechnet.
Flächen
- vermietbare Fläche: 116,07 m²
Zusatzinformationen
- Baujahr: 1994
Preis und Detailinformation
- Provisionspflichtige Immobilie
Premium Services
Der Vertrag kommt nicht mit willhaben zustande. Der Inserent ist Unternehmer. Allfällige aus dem Abschluss des Vertrages resultierende Rechte sind ausschließlich gegenüber dem Vertragspartner geltend zu machen.
Kreditrechner
Berechne die monatliche Rate für diese Immobilie
Anbieterdetails
Anbieter kontaktieren
willhaben-Code: 1464249868 | Zuletzt geändert: 15.04.2026, 08:15 Uhr
! Anzeige melden

